Edingen-Neckarhausen: Anwohner kritisieren Flüchtlingsunterkunft
Bauten am Sport- und Freizeitzentrum: Bürgerin bringt erneut angebliches "Biotop" vor - Rat legte Inhalte der Ausschreibung fest

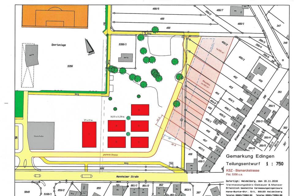
In der vorläufigen Skizze sind die möglichen mobilen Unterkünfte rot markiert. Der Gemeinderat legte am Mittwoch einstimmig die Inhalte der Ausschreibung fest. Er folgte dabei im Wesentlichen den Empfehlungen aus dem Technischen Ausschuss und veränderte nur die Energieeffizienz der Unterkünfte nach KfW 70 sowie minimal die Wertungskriterien für Angebote. Foto: Hofmann
Von Nicoline Pilz
Edingen-Neckarhausen. Der Bau einer Flüchtlingsunterkunft am Sport- und Freizeitzentrum treibt weiter die Anwohner um. In der Bürgerfragestunde in der Gemeinderatssitzung am Mittwoch ging es ihnen vor allem um die mögliche Umwandlung der rückwärtigen Gartengrundstücke in Bauland und die künftige Verkehrsführung mit einer Anbindung über die Ampelanlage an der Bismarckstraße.
Angesprochen wurde allerdings erneut auch die artenschutzrechtliche Betrachtung im "Biotop", das streng genommen keines ist, wie Bauamtsleiter Horst Göhrig noch einmal betonte (die RNZ berichtete). "Auch, wenn Sie das immer wiederholen, wird es dadurch nicht wahrer", sagte Göhrig zu einer Fragestellerin.
Die Schilder, die dort stehen, seien handgemacht, der Wildwuchs von selbst entstanden. Als Zuhörer konnte man den Eindruck gewinnen, dass die Vorbehalte der Bürger keineswegs gegen die Bebauung in einem vermeintlichen "Biotop", sondern gegen den Standort der Unterkunft zielten. "Es sind Ängste da", erkannte auch Irene Daners (SPD) später, "man muss mit den Anwohnern reden."
Bürgermeister-Stellvertreter Markus Schläfer sprach als Sitzungsleiter deutlich aus, dass die Kommune in der Verpflichtung sei, Flüchtlingen in der Anschlussunterbringung Wohnraum zur Verfügung zu stellen.
"Wir bitten um Rücksichtnahme, was unsere Arbeit angeht", sagte er zur gleichen Fragestellerin, der Göhrig zuvor schon geantwortet hatte, bezogen auf den Gemeinderat, "wir haben Ihre Fragen bereits im Technischen Ausschuss und im Vorfeld beantwortet."
Mit der Frage der Flüchtlingsunterbringung, im Gemeinderat in diesem Jahr häufig intensiv beraten, sei man sehr offen den Bürgern gegenüber umgegangen. Was diese offenbar stört, ist die Erwägung, die rückwärtigen Gartengrundstücke in Bauland umzuwandeln. Dass diese Idee, basierend auf einer gut gemeinten und für Anwohner wertausgleichenden Anregung von Gemeinderat Dietrich Herold, bereits in die Planskizze eingearbeitet war, bevor die Betroffenen überhaupt davon wussten, stieß ihnen sauer auf.
Die Anwohner sprachen von "Wortbruch", weil die Grundstücke als Puffer zwischen Sport- und Freizeitzentrum und der Bebauung eigentlich frei bleiben sollten. "Hier müssen wir an der Kommunikation arbeiten", gab Schläfer zu. Gleichzeitig erklärte er, das Ganze sei "weit in die Zukunft gedacht".
Göhrig erklärte, dass man "heute der Not" gehorche: "Wir haben uns wirklich Gedanken um den Standort gemacht. Aber es ist so, dass bald 100 Personen vor dem Rathaus stehen und untergebracht werden müssen." Private Unterkünfte seien ausgeschöpft.
Einstimmig legte der Rat schließlich die Inhalte der Ausschreibung für mobile Unterkünfte fest. Göhrig betonte gegenüber Angela Stelling von der Offenen Grünen Liste, dass die Gebäude so auf dem vorhandenen Grundstück verteilt werden sollen, dass der Baumbestand geschont werde, zugleich aber auch die Erschließung funktioniere.
Im Wesentlichen folgte der Gemeinderat den Empfehlungen aus dem Technischen Ausschuss (wir berichteten) und veränderte nur die Energieeffizienz der Unterkünfte nach KfW 70 sowie minimal die Wertungskriterien für Angebote. Ob ein- oder zweigeschossig gebaut wird, lasse man "bewusst" noch offen, sagte Bauamtsleiter Göhrig.



