Edingen-Neckarhausen plant Modulbauweise für Flüchtlingsunterkünfte
Der Gemeinde wurden 140 weitere Flüchtlinge angekündigt: Anschlussunterbringung am Sport- und Freizeitzentrum geplant

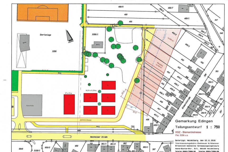
Die Unterkunft für Flüchtlinge in der kommunalen Anschlussunterbringung soll in Modulbauweise entstehen (in der Grafik rot markiert). Grafik: Vermessungsbüro/Repro: Hofmann
Edingen-Neckarhausen. (joho) Eine ausgiebige Beratung im Technischen Ausschuss (TA) am Donnerstag ging dem Beschluss voraus, dem Gemeinderat eine ein- bis zweigeschossige Modulbauweise für Unterkünfte beim Kultur- und Sportzentrum für Flüchtlinge in der kommunalen Anschlussunterbringung vorzuschlagen. Wie Bürgermeister Simon Michler berichtete, wurden der Gemeinde 140 weitere Flüchtlinge angekündigt. Davon könnten 30 bis 40 in der Gerberstraße aufgenommen werden, am Sportzentrum müsse man für 100 Menschen planen.
Die Verwaltung hatte sich zuvor fachlichen Rat bei Christiane Springer, Geschäftsführerin des DRK-Kreisverbandes Mannheim, geholt. Der Kreisverband ist in der Flüchtlingsbetreuung tätig, Springer war in der TA-Sitzung anwesend. Sie schlug unter anderem einen Belegungs-Mix von einem Drittel Familien zu zwei Dritteln Einzelpersonen und eine flexible Raumaufteilung vor. Auch ein gewisses Maß an Privatsphäre müsse gewährleistet werden.
In der Vorberatung des TA wurden auch die weiteren Vorgaben für die Ausschreibung beschlossen. Die Gemeinde hat dazu einen Leistungskatalog erarbeitet, der 15 Kriterien enthält. Dazu zählen Baukosten, Wärmeenergiebedarf, Kosten der Erschließung, Bauzeit, Einstufung als mobile Unterkunft, teilweise behindertengerechte Ausführung und Förderfähigkeit. Laut Beschlussvorlage ist ein Zuschuss von 25 Prozent der Herstellungskosten und 3000 Euro pro Quadratmeter an den Baukosten möglich. Diese Kriterien sollten gleich gewichtet werden. Der Anbieter, der die meisten Kriterien erfülle, solle Favorit sein, so Michler.
An der gleichwertigen Gewichtung entzündete sich Kritik. Thomas Zachler (SPD) befürchtete, dass dann der teuerste Anbieter den Zuschlag erhalten könne und man über die Zuschussgrenze komme. Auch seine Parteikollegin Irene Danes setzte sich für eine Höherbewertung der Kosten ein. Die Gewichtung stehe den Gemeinden frei, der Zuschuss errechne sich kompliziert nach Quadratmetern pro Familie oder Einzelperson (mindestens zehn Quadratmeter pro Person), jeweils inklusive oder exklusive des Anteils an der Gemeinschaftsfläche, erläuterte Bauamtsleiter Horst Göhrig. Stephan Kraus Vierling (UBL-FDP/FWV), der sich gegen eingeschossige Gebäude ausgesprochen hatte ("Eine Wagenburg ist ein No Go für uns"), forderte eine Höhergewichtung der Gesamtkosten in der Kriterienliste und die Einhaltung der Energiesparverordnung. Letzteres war auch Thomas Hoffmann (OGL) wichtig. Außerdem könne er sich nicht vorstellen, "was da hinkommt." "Ich denke da an weiße Gebäude mit begrünten, flach geneigten Dächern, die sich in die Umgebung einpassen", gab Horst Göhrig der Vorstellungskraft Hoffmanns Nahrung und klärte auf, dass laut Gesetzgeber beim Bau von Flüchtlingsunterkünften die Energiesparverordnung wegen der Kosten nicht eingehalten werden müsse. Der Ausschuss einigte sich auf die eingangs genannte Variante der Unterkünfte mit einem förderfähigen Raumbedarf von zehn Quadratmetern pro Person und die Gewichtung der Baukosten mit 50 Prozent bei den Vergabekriterien.



